お問い合わせ

LINE

『八王子市新築戸建て』八王子市大塚1473-6【仲介手数料無料】 21期 2号棟

5,480万円

東京都八王子市大塚1473-6

多摩都市モノレール「大塚・帝京大学」駅徒歩2分

中央線「豊田」駅バス24分「堰場」停歩2分

京王相模原線「京王多摩センター」駅バス12分「堰場」停歩2分

価格
5,480万円
間取り
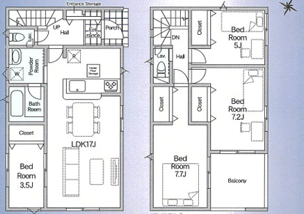
4LDK
土地面積
165.22㎡
所在地
東京都八王子市大塚1473-6
交通

多摩都市モノレール大塚・帝京大学」駅 徒歩2分

中央線豊田」駅 バス24分 「堰場」 停歩2分

京王相模原線京王多摩センター」駅 バス12分 「堰場」 停歩2分

建物面積
93.15㎡
築年月
2026年4月(予定)

物件の特徴

  • TVモニタ付きインターホン

  • カウンターキッチン

  • 浴室乾燥機

セールスポイント

通常、購入に必要な約180万円の仲介手数料を「無料」でご紹介可能です。~仲介手数料無料☆八王子ひなた不動産~

ポイント

☆気になる「#」をクリック  同じ条件の物件一覧が表示されます☆ #日当たり良好 #駐車2台以上 #静かな住環境 #スーパー近隣 #小学校近隣 #アクセス良好 #八王子新築 #八王子戸建て #仲介手数料無料          

担当者のコメント

竹村 美紀

全4棟の閑静な住宅街にある新築戸建てです。

多摩都市モノレール「大塚・帝京大学」駅まで徒歩2分の立地です。

八王子の新築戸建・中古戸建
マンション・土地には自信あり☆

八王子で選ばれ続ける理由がある♪
口コミNo.1&仲介手数料無料!

基本情報

販売戸数
-
総戸数
4戸
間取り / 詳細
4LDK
LDK 17.0帖 1室/洋室 3.5帖 1室/洋室 7.7帖 1室/洋室 7.2帖 1室/洋室 5.0帖 1室/1室
向き
建物面積(坪数)
93.15㎡(28.17坪)
土地面積(坪数)
165.22㎡(49.97坪)
建ぺい率 /
容積率
50%/100%
築年月
2026年4月(予定)
駐車場 / 月額
有(2台) / 0円
土地権利
所有権
土地
(敷金 / 保証金)
- / -
建物構造
木造 / 2階建
傾斜地部分面積
-
路地状敷地
-
私道負担面積
-
セットバック
高圧線下面積
-
施工会社
-
用途地域
第一種低層住居専用
地目 / 地勢
宅地 / -
接道状況
角地(北西 公道 5.0m)(南東 公道 6.0m)
国土法届出要否
不要
都市計画
市街化区域
総区画数 /
販売区画数
4区画/-
現況
未完成
その他
法令上の制限
景観法/航空法/宅地造成及び特定盛土等規制法/高度地区/準防火地域
取引態様
仲介
引渡し
相談
取引条件の
有効期限
2026年03月26日

設備条件

設備条件
  • 陽当り良好 / 閑静な住宅地 / バリアフリー / 建設住宅性能評価書付 / 仲介手数料無料 / ルーフバルコニー / 都市ガス / 公営水道 / 公共下水 / 電気有 / 駐車2台可 / 耐震構造 / ガスコンロ / コンロ2口以上 / システムキッチン / コンロ3口 / カウンターキッチン / 追焚機能浴室 / 浴室乾燥機 / 温水洗浄便座 / 床下収納 / 収納豊富 / TVモニタ付インターホン / 宅配ボックス / 複層ガラス
設備(その他)
    -

その他

物件番号
102034024
管理コード
-
建築確認番号
第25UDI1W建11323号
情報更新日
2026年03月12日
次回更新予定日
2026年03月26日
取扱会社
  • 株式会社八王子ひなた不動産
  • 東京都八王子市日吉町13-36 
  • TEL:050-5526-2826
  • 東京都知事 (1) 第106521号
備考
*☆*―【 仲介手数料無料でご紹介 】―*☆*

八王子ひなた不動産HPに記載の物件は全て
「仲介手数料無料」でご紹介可能です!

掲載されていない物件も、仲介手数料無料でご紹介可能な場合も多くございます。

弊社HPに掲載がなく、スーモやホームズに載っている物件も
「仲介手数料がかかる物件かどうか?」まずはお気軽にお問い合わせください。


*☆*―【 子連れ来店も安心! 】―*☆*

◎土足厳禁!やわらかいクッションフロアの店内

店内の床は「一番汚れの目立つ白色に!」
その分、お掃除を徹底し、清潔な店内にしています!(^^)!

わんぱくなお子様も大歓迎!!
ご家族皆様でご来店ください☆


*☆*―【お友達紹介で現金5万円進呈】―*☆*

ご紹介いただいたお客様が成約になった場合
ご紹介者様とお客様の双方に特典をご用意しております!(^^)!

ご紹介者様 → 現金5万円進呈
ご購入者様 → 特別特典あり


八王子ひなた不動産を是非ご紹介ください(^^♪


*☆*―【駐車場あり】―*☆*

中央線西八王子駅から徒歩8分
八王子市役所へ向かう交差点の角地にございます。

お車でお越しの際は近隣に点在しております、お好きなコインパーキングへ駐車してください。
お帰りの際に、弊社にて駐車料金を精算させていただきます!(^^)!

『八王子市新築戸建て』八王子市大塚1473-6【仲介手数料無料】 21期の他の物件

  1. 1号棟

    4LDK (96.38㎡)

    5,580万円(191.42万円/坪)

  2. 3号棟

    3LDK (91.53㎡)

    5,780万円(208.82万円/坪)

  3. 4号棟

    4LDK (95.57㎡)

    5,680万円(196.54万円/坪)

周辺施設

  • セブンイレブン 八王子東中野店の画像

    コンビニエンスストア

    セブンイレブン 八王子東中野店

    168m(3分)

  • 大塚・帝京大学駅前郵便局の画像

    郵便局

    大塚・帝京大学駅前郵便局

    246m(4分)

  • 大塚保育園分園の画像

    保育園

    大塚保育園分園

    302m(4分)

  • セブンイレブン 八王子せきば店の画像

    コンビニエンスストア

    セブンイレブン 八王子せきば店

    320m(4分)

  • OK(オーケー) 多摩大塚店の画像

    スーパー

    OK(オーケー) 多摩大塚店

    600m(8分)

  • 八王子市立由木東小学校の画像

    小学校

    八王子市立由木東小学校

    764m(10分)

  • 多摩南部地域病院の画像

    総合病院

    多摩南部地域病院

    2547m(32分)

  • 八王子市立由木中学校の画像

    中学校

    八王子市立由木中学校

    3340m(42分)

支払いシミュレーション

月々の支払額
購入希望物件価格
万円
頭金
万円
金利
%
返済額(ボーナス1回分)
万円
返済期間

※ボーナスは自動で年2回分で計算されます。

近隣の物件

  1. 『八王子市新築戸建て』八王子市元八王子町3-2153-98【仲介手数料無料】 6期

    八王子市元八王子町3丁目

    3LDK (99.36㎡)

    3,100万円

  2. 『八王子市新築戸建て』八王子市寺田町43-1【仲介手数料無料】

    八王子市寺田町

    4LDK (96.87㎡)

    3,550万円

  3. 『八王子市新築戸建て』八王子市北野台3-36-9【仲介手数料無料】 3期

    八王子市北野台3丁目

    4LDK (102.67㎡)

    4,798万円

  4. 『八王子市新築戸建て』八王子市戸吹町1971【仲介手数料無料】

    八王子市戸吹町

    4LDK (97.29㎡)

    3,090万円

よく見られている物件

  1. 『八王子市中古戸建て』八王子市散田町5【仲介手数料無料】

    八王子市散田町5丁目

    4LDK+S(納戸) (96.87㎡)

    2,999万円

  2. 『八王子市中古戸建て』八王子市本町23-6【仲介手数料無料】

    八王子市本町

    2LDK+2S(納戸) (104.53㎡)

    4,490万円

  3. 三鷹市中原【仲介手数料無料】 三鷹市中原 中古戸建

    三鷹市中原1丁目

    4LDK (81.26㎡)

    5,280万円

  4. 『八王子市新築戸建て』八王子市元八王子町3-2153-98【仲介手数料無料】 6期

    八王子市元八王子町3丁目

    3LDK (99.36㎡)

    3,100万円

『八王子市新築戸建て』八王子市大塚1473-6【仲介手数料無料】 21期

『八王子市新築戸建て』八王子市大塚1473-6【仲介手数料無料】 21期

5,480万円

-

4LDK(93.15㎡)

お気軽にお問い合わせください

無料お問い合わせ

株式会社八王子ひなた不動産

050-5526-2826

10:00~19:00

(休:火曜日・水曜日)