お問い合わせ

LINE

『八王子市新築戸建て』八王子市川口町3662-3【仲介手数料無料】 90期 3号棟

10月30日 値下げ

2,380万円

東京都八王子市川口町3662-3

中央線「八王子」駅バス25分西東京バス「川口橋(東京都)」停歩3分

横浜線「八王子」駅バス25分西東京バス「川口橋(東京都)」停歩3分

京王線「京王八王子」駅バス37分西東京バス「川口橋(東京都)」停歩3分

価格
2,380万円
間取り
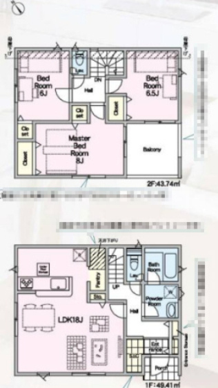
3LDK
土地面積
142.26㎡
所在地
東京都八王子市川口町3662-3
交通

中央線八王子」駅 バス25分 西東京バス「川口橋(東京都)」 停歩3分

横浜線八王子」駅 バス25分 西東京バス「川口橋(東京都)」 停歩3分

京王線京王八王子」駅 バス37分 西東京バス「川口橋(東京都)」 停歩3分

建物面積
93.15㎡
築年月
2025年10月(予定)

物件の特徴

  • TVモニタ付きインターホン

  • カウンターキッチン

  • 浴室乾燥機

セールスポイント

通常、購入に必要な約80万円の仲介手数料を「無料」でご紹介可能です。~仲介手数料無料☆八王子ひなた不動産~

ポイント

☆気になる「#」をクリック  同じ条件の物件一覧が表示されます☆ #駐車2台以上 #静かな住環境 #緑豊か #小学校近隣 #八王子新築 #八王子戸建て #仲介手数料無料

担当者のコメント

竹村 美紀

小学校が徒歩5分間内、
子育てに適した住環境!豊かな緑に囲まれた閑静な住宅街。
全4棟の新築戸建てです。

環境にも配慮したオール電化住宅で、
ソーラーパネルを搭載し、経済的にも安心。

これからの時代にふさわしい安心・快適な暮らしを実現します。

八王子・日野・あきる野の新築戸建・中古戸建・中古マンションは~八王子ひなた不動産~へ

基本情報

販売戸数
-
総戸数
4戸
間取り / 詳細
3LDK
LDK 18.0帖 1室/洋室 8.0帖 1室/洋室 6.5帖 1室/洋室 6.0帖 1室
向き
南東
建物面積(坪数)
93.15㎡(28.17坪)
土地面積(坪数)
142.26㎡(43.03坪)
建ぺい率 /
容積率
40%/80%
築年月
2025年10月(予定)
駐車場 /
月額料金
有(2台) 0円
土地権利
所有権
土地
(敷金 / 保証金)
- / -
建物構造
木造 / 2階建
傾斜地部分面積
-
路地状敷地
-
私道負担面積
107.00㎡
私道負担割合 : 1/6
セットバック
高圧線下面積
-
施工会社
-
用途地域
第一種低層住居専用
地目 / 地勢
宅地 / -
接道状況
一方(東 私道 5.0m)
国土法届出要否
不要
都市計画
市街化区域
総区画数 /
販売区画数
4区画/-
現況
未完成
その他
法令上の制限
文化財保護法/景観法/航空法/宅地造成及び特定盛土等規制法/高度地区/都市再生特別地区/高さ最高限度有/川口地区地区計画
取引態様
仲介
引渡し
相談
取引条件の
有効期限
2025年11月18日

設備条件

設備条件
  • 閑静な住宅地 / バリアフリー / 建設住宅性能評価書付 / 仲介手数料無料 / 公営水道 / 公共下水 / オール電化 / 電気有 / 駐車2台可 / 耐震構造 / システムキッチン / カウンターキッチン / 電気コンロ / 追焚機能浴室 / 浴室乾燥機 / 温水洗浄便座 / 床下収納 / ウォークインシューズクロゼット / 収納豊富 / TVモニタ付インターホン / 宅配ボックス / 複層ガラス
設備(その他)
    -

その他

物件番号
98561847
管理コード
-
建築確認番号
第250UD1W建01948号
情報更新日
2025年11月04日
次回更新予定日
2025年11月18日
備考
*☆*―【 仲介手数料無料でご紹介 】―*☆*

八王子ひなた不動産HPに記載の物件は全て
「仲介手数料無料」でご紹介可能です!

掲載されていない物件も、仲介手数料無料でご紹介可能な場合も多くございます。

弊社HPに掲載がなく、スーモやホームズに載っている物件も
「仲介手数料がかかる物件かどうか?」まずはお気軽にお問い合わせください。


*☆*―【 子連れ来店も安心! 】―*☆*

◎土足厳禁!やわらかいクッションフロアの店内

店内の床は「一番汚れの目立つ白色に!」
その分、お掃除を徹底し、清潔な店内にしています!(^^)!

わんぱくなお子様も大歓迎!!
ご家族皆様でご来店ください☆


*☆*―【お友達紹介で現金5万円進呈】―*☆*

ご紹介いただいたお客様が成約になった場合
ご紹介者様とお客様の双方に特典をご用意しております!(^^)!

ご紹介者様 → 現金5万円進呈
ご購入者様 → 特別特典あり


八王子ひなた不動産を是非ご紹介ください(^^♪


*☆*―【駐車場あり】―*☆*

中央線西八王子駅から徒歩8分
八王子市役所へ向かう交差点の角地にございます。

お車でお越しの際は近隣に点在しております、お好きなコインパーキングへ駐車してください。
お帰りの際に、弊社にて駐車料金を精算させていただきます!(^^)!

『八王子市新築戸建て』八王子市川口町3662-3【仲介手数料無料】 90期の他の物件

  1. 1号棟

    4LDK (95.58㎡)

    2,580万円(89.24万円/坪)

  2. 2号棟

    3LDK (96.38㎡)

    2,380万円(81.65万円/坪)

  3. 4号棟

    4LDK (94.77㎡)

    2,580万円(90.02万円/坪)

周辺施設

  • ファミリーマート 八王子川口町店の画像

    コンビニエンスストア

    ファミリーマート 八王子川口町店

    306m(4分)

  • 下川口郵便局の画像

    郵便局

    下川口郵便局

    336m(5分)

  • キロロ動物病院の画像

    動物病院

    キロロ動物病院

    365m(5分)

  • 八王子市立川口小学校の画像

    小学校

    八王子市立川口小学校

    373m(5分)

  • 共励第二こども園の画像

    保育園

    共励第二こども園

    615m(8分)

  • 八王子市立川口中学校の画像

    中学校

    八王子市立川口中学校

    949m(12分)

支払いシミュレーション

月々の支払額
9.6
購入希望物件価格
万円
頭金
万円
金利
%
返済額(ボーナス1回分)
万円
返済期間

※ボーナスは自動で年2回分で計算されます。

近隣の物件

  1. 『八王子市新築戸建て』八王子市元八王子町3-2153-98【仲介手数料無料】 6期

    八王子市元八王子町3丁目

    3LDK (99.36㎡)

    3,100万円

  2. 『八王子市新築戸建て』八王子市小宮町346【仲介手数料無料】 24ー1期

    八王子市小宮町

    4LDK (103.13㎡)

    4,080万円

  3. 『八王子市新築戸建て』八王子市犬目町217-3【仲介手数料無料】

    八王子市犬目町

    3LDK (81.40㎡)

    2,980万円

  4. 『八王子市新築戸建て』八王子市元八王子町2-839【仲介手数料無料】

    八王子市元八王子町2丁目

    4LDK (99.36㎡)

    3,480万円

『八王子市新築戸建て』八王子市川口町3662-3【仲介手数料無料】 90期

『八王子市新築戸建て』八王子市川口町3662-3【仲介手数料無料】 90期

2,380万円

-

3LDK(93.15㎡)

お気軽にお問い合わせください

無料お問い合わせ

株式会社八王子ひなた不動産

050-5526-2826

10:00~19:00

(休:火曜日・水曜日)