お問い合わせ

LINE

『八王子市新築戸建て』八王子市諏訪町25【仲介手数料無料】 37期

2,980万円~3,080万円

東京都八王子市諏訪町25

中央線「西八王子」駅バス18分西東京バス「諏訪神社(八王子市)」停歩4分

京王線「京王八王子」駅バス30分西東京バス「諏訪神社(八王子市)」停歩4分

横浜線「八王子」駅バス28分西東京バス「諏訪神社(八王子市)」停歩4分

価格
2,980万円~3,080万円
間取り/建物面積
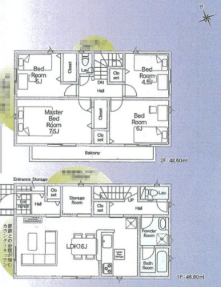
3LDK~4LDK/93.14㎡~97.20㎡
所在地
東京都八王子市諏訪町25
築年
2025年10月(予定)
駐車
有(3台)
交通

中央線西八王子」駅 バス18分 西東京バス「諏訪神社(八王子市)」 停歩4分

京王線京王八王子」駅 バス30分 西東京バス「諏訪神社(八王子市)」 停歩4分

横浜線八王子」駅 バス28分 西東京バス「諏訪神社(八王子市)」 停歩4分

『八王子市新築戸建て』八王子市諏訪町25【仲介手数料無料】 37期の基本情報

物件名
『八王子市新築戸建て』八王子市諏訪町25【仲介手数料無料】 37期
価格
2,980万円~3,080万円
建物面積
93.14㎡~97.20㎡
土地面積
37.81坪(125.00㎡~125.01㎡)
築年月
2025年10月(予定)
総戸数
3戸
所在地
東京都八王子市諏訪町25
交通

中央線西八王子」駅 バス18分 西東京バス「諏訪神社(八王子市)」 停歩4分

京王線京王八王子」駅 バス30分 西東京バス「諏訪神社(八王子市)」 停歩4分

横浜線八王子」駅 バス28分 西東京バス「諏訪神社(八王子市)」 停歩4分

『八王子市新築戸建て』八王子市諏訪町25【仲介手数料無料】 37期の詳細情報

設備条件
  • 閑静な住宅地
  • 建設住宅性能評価書付
  • 駐車3台可
  • 耐震構造
  • 宅配ボックス
設備(その他)
    -
駐車場/月額
有(3台)/0円
土地権利
所有権
国土法届出
不要
用途地域
第一種低層住居専用
取引態様
仲介
引渡し
相談

『八王子市新築戸建て』八王子市諏訪町25【仲介手数料無料】 37期で募集中の物件

  1. 1号棟

    28.17坪 (93.14㎡)

    2,980万円(105.79万円/坪)

  2. 2号棟

    28.17坪 (93.14㎡)

    2,980万円(78.82万円/坪)

  3. 3号棟

    29.40坪 (97.20㎡)

    3,080万円(104.76万円/坪)

周辺施設

  • 諏訪保育園の画像

    保育園

    諏訪保育園

    161m(3分)

  • 八王子桑の実幼稚園の画像

    幼稚園

    八王子桑の実幼稚園

    404m(6分)

  • スーパーオザム大楽寺店の画像

    スーパー

    スーパーオザム大楽寺店

    471m(6分)

  • ドラッグセイムス大楽寺店の画像

    ドラッグストア

    ドラッグセイムス大楽寺店

    472m(6分)

  • ニュー本庄鮮魚部大楽寺店の画像

    スーパー

    ニュー本庄鮮魚部大楽寺店

    575m(8分)

  • セブンイレブン 八王子大楽寺店の画像

    コンビニエンスストア

    セブンイレブン 八王子大楽寺店

    594m(8分)

  • なりた動物病院の画像

    動物病院

    なりた動物病院

    782m(10分)

  • 八王子市立四谷中学校の画像

    中学校

    八王子市立四谷中学校

    800m(10分)

  • 元八王子郵便局の画像

    郵便局

    元八王子郵便局

    876m(11分)

  • 八王子市立弐分方小学校の画像

    小学校

    八王子市立弐分方小学校

    1124m(15分)

  • 八王子市立上壱分方小学校の画像

    小学校

    八王子市立上壱分方小学校

    1207m(16分)

  • 東京天使病院の画像

    総合病院

    東京天使病院

    1207m(16分)

近隣の物件

  1. 八王子市元八王子町3丁目

    3LDK (99.36㎡)

    3,100万円

  2. 八王子市楢原町

    4LDK (103.62㎡)

    4,080万円

  3. 八王子市上柚木

    4LDK (104.50㎡)

    5,599万円

  4. 八王子市西寺方町

    4LDK (95.22㎡)

    2,980万円

『八王子市新築戸建て』八王子市諏訪町25【仲介手数料無料】 37期

お気軽にお問い合わせください

無料お問い合わせ

株式会社八王子ひなた不動産

050-5526-2826

10:00~19:00

(休:火曜日・水曜日)