お問い合わせ

LINE

『八王子市新築戸建て』八王子市元八王子町2-816【仲介手数料無料】 46期 4号棟

3,180万円

東京都八王子市元八王子町2丁目816

中央線「高尾」駅バス8分西東京バス「出羽橋」停歩4分

京王高尾線「高尾」駅バス8分西東京バス「出羽橋」停歩4分

中央線「八王子」駅バス31分西東京バス「元八2丁目」停歩5分

価格
3,180万円
間取り
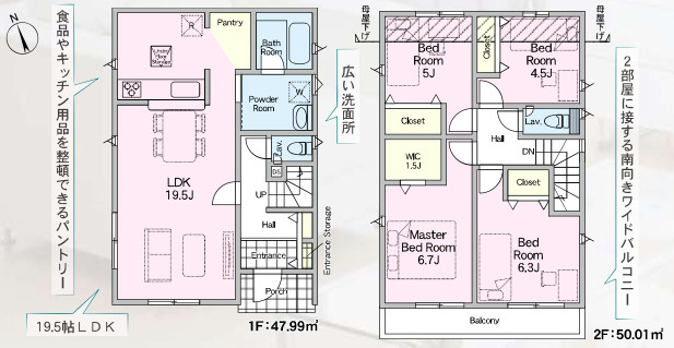
3LDK
土地面積
145.04㎡
所在地
東京都八王子市元八王子町2丁目816
交通

中央線高尾」駅 バス8分 西東京バス「出羽橋」 停歩4分

京王高尾線高尾」駅 バス8分 西東京バス「出羽橋」 停歩4分

中央線八王子」駅 バス31分 西東京バス「元八2丁目」 停歩5分

建物面積
95.58㎡
築年月
2025年12月(予定)

物件の特徴

  • TVモニタ付きインターホン

  • カウンターキッチン

  • 浴室乾燥機

セールスポイント

通常、購入に必要な約110万円の仲介手数料を「無料」でご紹介可能です。~仲介手数料無料☆八王子ひなた不動産~

ポイント

☆気になる「#」をクリック  同じ条件の物件一覧が表示されます☆ #日当たり良好 #駐車2台以上 #開放感ある立地 #静かな住環境 #緑豊か #スーパー近隣 #小学校近隣 #アクセス良好 #平坦地 #庭付き #角住戸 #八王子新築 #八王子戸建て #仲介手数料無料

担当者のコメント

細川 泰弘

八王子の新築戸建・中古戸建
マンション・土地には自信あり☆

八王子で選ばれ続ける理由がある♪
口コミNo.1&仲介手数料無料!

基本情報

販売戸数
-
総戸数
4戸
間取り / 詳細
3LDK
LDK 15.2帖/洋室 8.0帖/洋室 4.5帖/洋室 4.5帖
向き
建物面積(坪数)
95.58㎡(28.91坪)
土地面積(坪数)
145.04㎡(43.87坪)
建ぺい率 /
容積率
40%/80%
築年月
2025年12月(予定)
駐車場 /
月額料金
有(2台) 0円
土地権利
所有権
土地
(敷金 / 保証金)
- / -
建物構造
木造 / 2階建
傾斜地部分面積
-
路地状敷地
-
私道負担面積
-
セットバック
要 9.11㎡
高圧線下面積
-
施工会社
-
用途地域
第一種低層住居専用
地目 / 地勢
宅地 / -
接道状況
角地(北 私道 4.0m)(北西 公道 4.0m)
国土法届出要否
不要
都市計画
市街化区域
総区画数 /
販売区画数
4区画/-
現況
未完成
その他
法令上の制限
景観法/航空法/宅地造成及び特定盛土等規制法/高度地区/元八王子南部地区地区計画区域
取引態様
仲介
引渡し
相談
取引条件の
有効期限
2026年02月20日

設備条件

設備条件
  • 陽当り良好 / 閑静な住宅地 / バリアフリー / 建設住宅性能評価書付 / 仲介手数料無料 / プロパンガス / 公営水道 / 公共下水 / 電気有 / インナーバルコニー / 駐車2台可 / 耐震構造 / ガスコンロ / システムキッチン / カウンターキッチン / 追焚機能浴室 / 浴室乾燥機 / 温水洗浄便座 / 床下収納 / ウォークインクロゼット / ウォークインシューズクロゼット / 収納豊富 / TVモニタ付インターホン / 宅配ボックス / 複層ガラス / 角部屋
設備(その他)
    -

その他

物件番号
99671955
管理コード
-
建築確認番号
第25UDI1W建05326号
情報更新日
2026年02月06日
次回更新予定日
2026年02月20日
取扱会社
  • 株式会社八王子ひなた不動産
  • 東京都八王子市日吉町13-36 
  • TEL:050-5526-2826
  • 東京都知事 (1) 第106521号
備考
*☆*―【 仲介手数料無料でご紹介 】―*☆*

八王子ひなた不動産HPに記載の物件は全て
「仲介手数料無料」でご紹介可能です!

掲載されていない物件も、仲介手数料無料でご紹介可能な場合も多くございます。

弊社HPに掲載がなく、スーモやホームズに載っている物件も
「仲介手数料がかかる物件かどうか?」まずはお気軽にお問い合わせください。


*☆*―【 子連れ来店も安心! 】―*☆*

◎土足厳禁!やわらかいクッションフロアの店内

店内の床は「一番汚れの目立つ白色に!」
その分、お掃除を徹底し、清潔な店内にしています!(^^)!

わんぱくなお子様も大歓迎!!
ご家族皆様でご来店ください☆


*☆*―【お友達紹介で現金5万円進呈】―*☆*

ご紹介いただいたお客様が成約になった場合
ご紹介者様とお客様の双方に特典をご用意しております!(^^)!

ご紹介者様 → 現金5万円進呈
ご購入者様 → 特別特典あり


八王子ひなた不動産を是非ご紹介ください(^^♪


*☆*―【駐車場あり】―*☆*

中央線西八王子駅から徒歩8分
八王子市役所へ向かう交差点の角地にございます。

お車でお越しの際は近隣に点在しております、お好きなコインパーキングへ駐車してください。
お帰りの際に、弊社にて駐車料金を精算させていただきます!(^^)!

『八王子市新築戸建て』八王子市元八王子町2-816【仲介手数料無料】 46期の他の物件

  1. 1号棟

    4LDK (95.58㎡)

    2,880万円(99.62万円/坪)

  2. 2号棟

    4LDK (98.00㎡)

    2,780万円(93.79万円/坪)

周辺施設

  • ミニストップ 元八王子2丁目店の画像

    コンビニエンスストア

    ミニストップ 元八王子2丁目店

    362m(5分)

  • 元八王子幼稚園の画像

    幼稚園

    元八王子幼稚園

    433m(6分)

  • 城山保育園の画像

    保育園

    城山保育園

    670m(9分)

  • 舩田小学校の画像

    小学校

    舩田小学校

    688m(9分)

  • 八王子市立城山小学校の画像

    小学校

    八王子市立城山小学校

    752m(10分)

  • コープみらい コープ城山手店の画像

    スーパー

    コープみらい コープ城山手店

    760m(10分)

  • セブンイレブン 元八王子店の画像

    コンビニエンスストア

    セブンイレブン 元八王子店

    942m(12分)

  • 長房西保育園の画像

    保育園

    長房西保育園

    986m(13分)

  • エコス TAIRAYA(たいらや) 元八王子店の画像

    スーパー

    エコス TAIRAYA(たいらや) 元八王子店

    992m(13分)

  • セブンイレブン 八王子長房町店の画像

    コンビニエンスストア

    セブンイレブン 八王子長房町店

    1170m(15分)

  • 八王子市立城山中学校の画像

    中学校

    八王子市立城山中学校

    1388m(18分)

  • スーパーアルプス 長房店の画像

    スーパー

    スーパーアルプス 長房店

    1588m(20分)

  • Copio(コピオ)長房の画像

    ショッピングセンター

    Copio(コピオ)長房

    1594m(20分)

  • カインズ八王子長房店の画像

    ホームセンター

    カインズ八王子長房店

    1794m(23分)

  • 八王子白百合幼稚園の画像

    幼稚園

    八王子白百合幼稚園

    2098m(27分)

支払いシミュレーション

月々の支払額
9.6
購入希望物件価格
万円
頭金
万円
金利
%
返済額(ボーナス1回分)
万円
返済期間

※ボーナスは自動で年2回分で計算されます。

近隣の物件

  1. 『八王子市新築戸建て』八王子市元八王子町3-2153-98【仲介手数料無料】 6期

    八王子市元八王子町3丁目

    3LDK (99.36㎡)

    3,100万円

  2. 『八王子市新築戸建て』八王子市元八王子町3-2153-338【仲介手数料無料】 6期

    八王子市元八王子町3丁目

    3LDK (99.36㎡)

    2,950万円

  3. 『八王子市中古戸建て』八王子市石川町1615-34【仲介手数料無料】 八王子市石川町

    八王子市石川町

    3LDK (67.90㎡)

    2,199万円

  4. 『八王子市中古戸建て』八王子市元八王子町2-3315-7【仲介手数料無料】 八王子市元八王子町

    八王子市元八王子町2丁目

    3LDK (102.67㎡)

    2,999万円

『八王子市新築戸建て』八王子市元八王子町2-816【仲介手数料無料】 46期

『八王子市新築戸建て』八王子市元八王子町2-816【仲介手数料無料】 46期

3,180万円

-

3LDK(95.58㎡)

お気軽にお問い合わせください

無料お問い合わせ

株式会社八王子ひなた不動産

050-5526-2826

10:00~19:00

(休:火曜日・水曜日)