お問い合わせ

LINE

『八王子市新築戸建て』八王子市諏訪町25【仲介手数料無料】 37期 1号棟

2月1日 値下げ

2,750万円

東京都八王子市諏訪町25

中央線「西八王子」駅バス18分西東京バス「諏訪神社(八王子市)」停歩4分

京王線「京王八王子」駅バス30分西東京バス「諏訪神社(八王子市)」停歩4分

横浜線「八王子」駅バス28分西東京バス「諏訪神社(八王子市)」停歩4分

価格
2,750万円
間取り
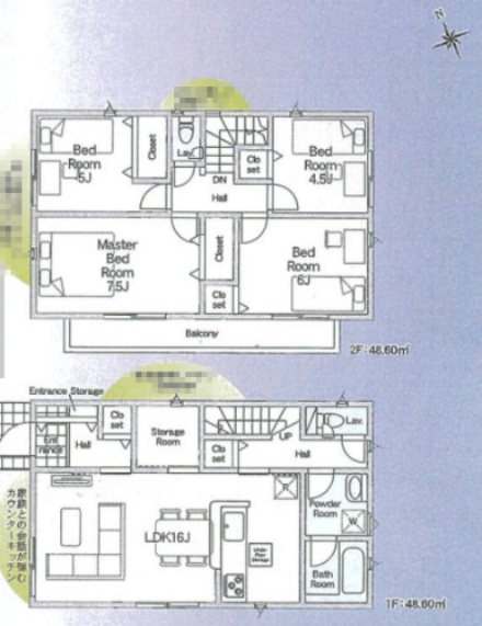
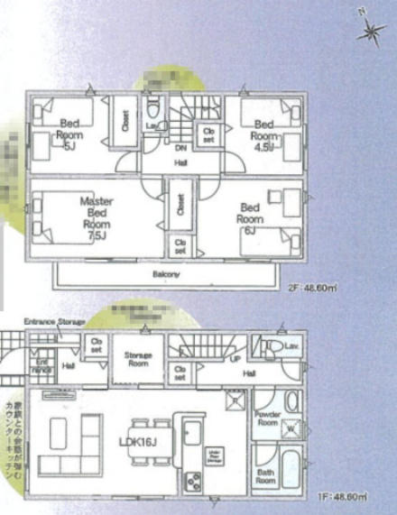
3LDK
土地面積
125.01㎡
所在地
東京都八王子市諏訪町25
交通

中央線西八王子」駅 バス18分 西東京バス「諏訪神社(八王子市)」 停歩4分

京王線京王八王子」駅 バス30分 西東京バス「諏訪神社(八王子市)」 停歩4分

横浜線八王子」駅 バス28分 西東京バス「諏訪神社(八王子市)」 停歩4分

建物面積
93.14㎡
築年月
2025年10月(新築)

物件の特徴

  • TVモニタ付きインターホン

  • カウンターキッチン

  • 浴室乾燥機

セールスポイント

通常、購入に必要な約90万円の仲介手数料を「無料」でご紹介可能です。~仲介手数料無料☆八王子ひなた不動産~

ポイント

☆気になる「#」をクリック  同じ条件の物件一覧が表示されます☆ #日当たり良好 #駐車2台以上 #駐車3台以上 #静かな住環境 #スーパー近隣 #八王子新築 #八王子戸建て #仲介手数料無料

担当者のコメント

竹村 美紀

閑静な住宅街にある新築戸建てです。

駐車場には3台駐車できます。

スーパーまで徒歩6分の立地なので
生活しやすい住環境です。

八王子・日野・あきる野の新築戸建・中古戸建・中古マンションは~八王子ひなた不動産~へ

基本情報

販売戸数
-
総戸数
3戸
間取り / 詳細
3LDK
洋室 16.7帖 1室/洋室 8.2帖 1室/洋室 6.0帖 1室/洋室 5.2帖 1室
向き
建物面積(坪数)
93.14㎡(28.17坪)
土地面積(坪数)
125.01㎡(37.81坪)
建ぺい率 /
容積率
40%/80%
築年月
2025年10月(新築)
駐車場 /
月額料金
有(3台) 0円
土地権利
所有権
土地
(敷金 / 保証金)
- / -
建物構造
木造 / 2階建
傾斜地部分面積
-
路地状敷地
-
私道負担面積
-
セットバック
高圧線下面積
-
施工会社
-
用途地域
第一種低層住居専用
地目 / 地勢
宅地 / -
接道状況
一方(南東 公道 5.0m)
国土法届出要否
不要
都市計画
市街化区域
総区画数 /
販売区画数
3区画/-
現況
完成済み
その他
法令上の制限
景観法/航空法/宅地造成及び特定盛土等規制法/高度地区/元八王子北部地区地区計画
取引態様
仲介
引渡し
即時
取引条件の
有効期限
2026年02月20日

設備条件

設備条件
  • 陽当り良好 / 閑静な住宅地 / バリアフリー / 建設住宅性能評価書付 / 仲介手数料無料 / 都市ガス / 公営水道 / 公共下水 / 電気有 / 駐車3台可 / 耐震構造 / ガスコンロ / コンロ2口以上 / システムキッチン / コンロ3口 / カウンターキッチン / 追焚機能浴室 / 浴室乾燥機 / 温水洗浄便座 / 床下収納 / 収納豊富 / TVモニタ付インターホン / 宅配ボックス / 複層ガラス
設備(その他)
    -

その他

物件番号
98262021
管理コード
-
建築確認番号
第R07SHC113183号
情報更新日
2026年02月06日
次回更新予定日
2026年02月20日
取扱会社
  • 株式会社八王子ひなた不動産
  • 東京都八王子市日吉町13-36 
  • TEL:050-5526-2826
  • 東京都知事 (1) 第106521号
備考
*☆*―【 仲介手数料無料でご紹介 】―*☆*

八王子ひなた不動産HPに記載の物件は全て
「仲介手数料無料」でご紹介可能です!

掲載されていない物件も、仲介手数料無料でご紹介可能な場合も多くございます。

弊社HPに掲載がなく、スーモやホームズに載っている物件も
「仲介手数料がかかる物件かどうか?」まずはお気軽にお問い合わせください。


*☆*―【 子連れ来店も安心! 】―*☆*

◎土足厳禁!やわらかいクッションフロアの店内

店内の床は「一番汚れの目立つ白色に!」
その分、お掃除を徹底し、清潔な店内にしています!(^^)!

わんぱくなお子様も大歓迎!!
ご家族皆様でご来店ください☆


*☆*―【お友達紹介で現金5万円進呈】―*☆*

ご紹介いただいたお客様が成約になった場合
ご紹介者様とお客様の双方に特典をご用意しております!(^^)!

ご紹介者様 → 現金5万円進呈
ご購入者様 → 特別特典あり


八王子ひなた不動産を是非ご紹介ください(^^♪


*☆*―【駐車場あり】―*☆*

中央線西八王子駅から徒歩8分
八王子市役所へ向かう交差点の角地にございます。

お車でお越しの際は近隣に点在しております、お好きなコインパーキングへ駐車してください。
お帰りの際に、弊社にて駐車料金を精算させていただきます!(^^)!

『八王子市新築戸建て』八王子市諏訪町25【仲介手数料無料】 37期の他の物件

  1. 3号棟

    4LDK (97.20㎡)

    2,850万円(96.94万円/坪)

周辺施設

  • 諏訪保育園の画像

    保育園

    諏訪保育園

    161m(3分)

  • 八王子桑の実幼稚園の画像

    幼稚園

    八王子桑の実幼稚園

    404m(6分)

  • スーパーオザム大楽寺店の画像

    スーパー

    スーパーオザム大楽寺店

    471m(6分)

  • ドラッグセイムス大楽寺店の画像

    ドラッグストア

    ドラッグセイムス大楽寺店

    472m(6分)

  • ニュー本庄鮮魚部大楽寺店の画像

    スーパー

    ニュー本庄鮮魚部大楽寺店

    575m(8分)

  • セブンイレブン 八王子大楽寺店の画像

    コンビニエンスストア

    セブンイレブン 八王子大楽寺店

    594m(8分)

  • なりた動物病院の画像

    動物病院

    なりた動物病院

    782m(10分)

  • 八王子市立四谷中学校の画像

    中学校

    八王子市立四谷中学校

    800m(10分)

  • 元八王子郵便局の画像

    郵便局

    元八王子郵便局

    876m(11分)

  • 八王子市立弐分方小学校の画像

    小学校

    八王子市立弐分方小学校

    1124m(15分)

  • 八王子市立上壱分方小学校の画像

    小学校

    八王子市立上壱分方小学校

    1207m(16分)

  • 東京天使病院の画像

    総合病院

    東京天使病院

    1207m(16分)

支払いシミュレーション

月々の支払額
9.6
購入希望物件価格
万円
頭金
万円
金利
%
返済額(ボーナス1回分)
万円
返済期間

※ボーナスは自動で年2回分で計算されます。

近隣の物件

  1. 『八王子市新築戸建て』八王子市元八王子町3-2153-98【仲介手数料無料】 6期

    八王子市元八王子町3丁目

    3LDK (99.36㎡)

    3,100万円

  2. 『八王子市新築戸建て』八王子市元八王子町3-2153-338【仲介手数料無料】 6期

    八王子市元八王子町3丁目

    3LDK (99.36㎡)

    2,950万円

  3. 『八王子市中古戸建て』八王子市石川町1615-34【仲介手数料無料】 八王子市石川町

    八王子市石川町

    3LDK (67.90㎡)

    2,199万円

  4. 『八王子市中古戸建て』八王子市元八王子町2-3315-7【仲介手数料無料】 八王子市元八王子町

    八王子市元八王子町2丁目

    3LDK (102.67㎡)

    2,999万円

『八王子市新築戸建て』八王子市諏訪町25【仲介手数料無料】 37期

『八王子市新築戸建て』八王子市諏訪町25【仲介手数料無料】 37期

2,750万円

-

3LDK(93.14㎡)

お気軽にお問い合わせください

無料お問い合わせ

株式会社八王子ひなた不動産

050-5526-2826

10:00~19:00

(休:火曜日・水曜日)